Apartament 2 pok. Barska 26 I Stara Ochota
Warszawa, Mazowieckie
Opis
SPRZEDAŻ BEZPOŚREDNIA – POŚREDNIKOM DZIĘKUJĘ ZA KONTAKT.
Na sprzedaż stylowe, dopracowane w każdym detalu mieszkanie w jednej z najpiękniejszych warszawskich dzielnic – Starej Ochocie, w prestiżowej inwestycji Rezydencja Barska przy ul. Barskiej 26.
To propozycja dla osób, które cenią wysoką jakość wykończenia, spójny design i świetną lokalizację blisko centrum, a jednocześnie chcą mieszkać w spokojnej, zielonej części miasta.
Podstawowe informacje:
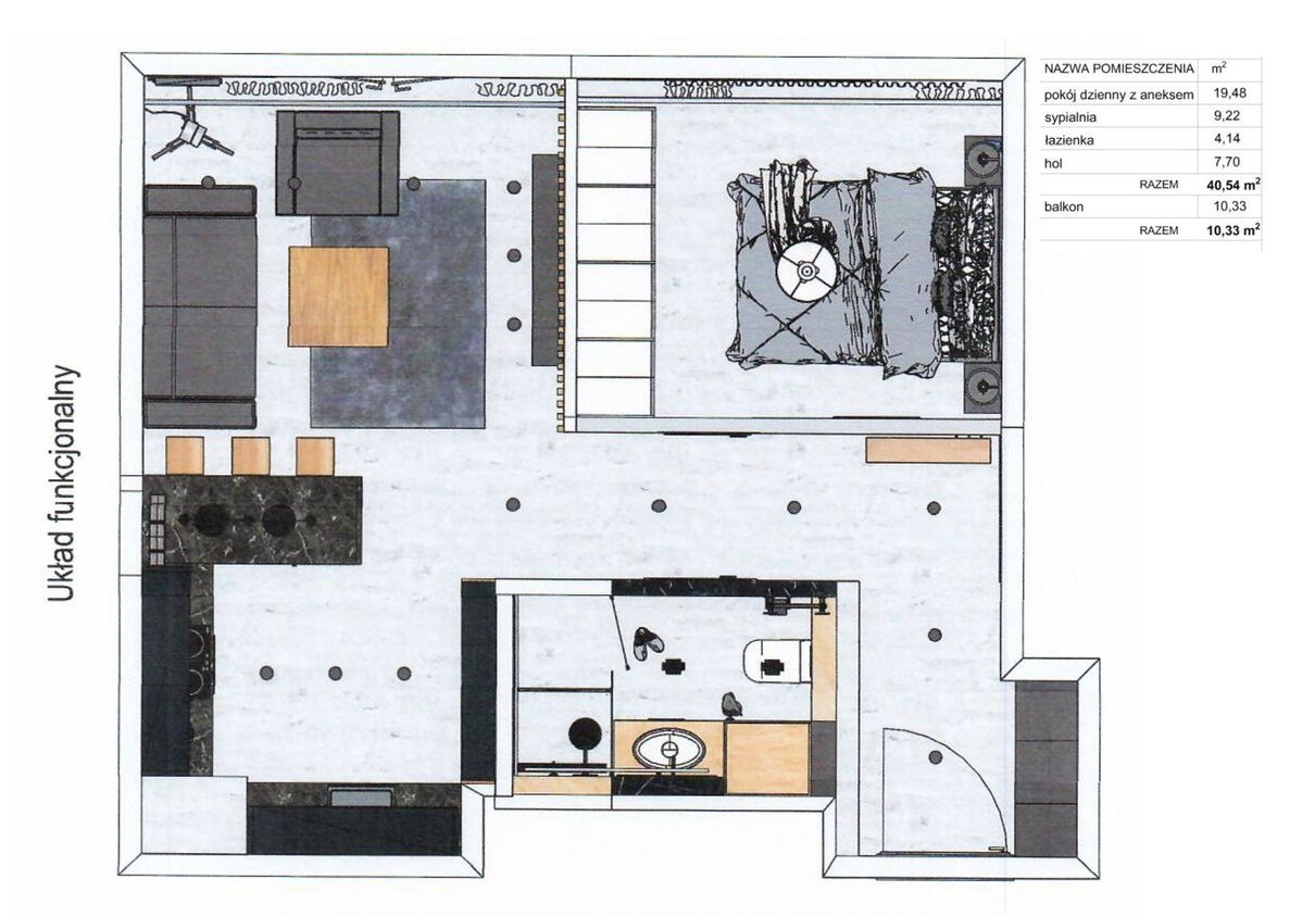
Powierzchnia: 40,5 m²
Piętro: 1
Loggia: ok. 11 m² (komfortowa przestrzeń do odpoczynku)
Budynek: z ochroną
Dostępność: od zaraz (mieszkanie "z dobrą energią", gotowe do zamieszkania)
Układ i standard
Mieszkanie jest funkcjonalne i świetnie rozplanowane: salon z kuchnią, oddzielna sypialnia, łazienka oraz hol.
Wnętrze zostało zaprojektowane przez projektanta w nowoczesnym, eleganckim stylu z akcentami loftowymi: połączenie czerni, naturalnego drewna, nastrojowego oświetlenia oraz wyrazistych struktur materiałów daje ponadczasowy charakter.
Kuchnia i zabudowy wykonane są na zamówienie / na wymiar, z dużą ilością miejsca do przechowywania.
Blaty z naturalnego kamienia podkreślają klasę wykończenia i trwałość na lata.
Pełne wyposażenie – gotowe do wprowadzenia
Mieszkanie sprzedawane jest z wyposażeniem widocznym na zdjęciach, m.in.:
kuchnia z zabudową i AGD (w tym zmywarka, piekarnik, płyta, okap, lodówka, chłodziarka do wina)
część dzienna z kompletną aranżacją (m.in. sofa, stolik, zabudowa RTV, TV, oświetlenie, zasłony)
sypialnia z łóżkiem i zabudową, klimatycznym podświetleniem
łazienka w nowoczesnym standardzie: przeszklony prysznic typu walk-in, elegancka armatura, zabudowa i duże formaty okładzin
Parking (ważne)
Do mieszkania przynależy komfortowe miejsce postojowe w garażu podziemnym na poziomie -2 (nie platforma).
Cena miejsca: 110 000 zł – płatne dodatkowo.
Lokalizacja – Stara Ochota, Barska 26
Adres Barska 26 to idealny balans między spokojem a miejską wygodą:
blisko centrum – szybki dojazd autem i komunikacją do Śródmieścia
w okolicy szkoły, przedszkola oraz bardzo wygodny dojazd do uczelni (m.in. Politechnika Warszawska, SGH, Warszawski Uniwersytet Medyczny, Kampus Uniwersytetu Warszawskiego)
liczne tereny zielone i parki w zasięgu krótkiego spaceru / dojazdu
świetna infrastruktura na co dzień: sklepy, punkty usługowe, a także bogata oferta kawiarni i restauracji w rejonie Ochoty
Jeśli szukasz mieszkania, które wyróżnia się jakością, stylem i lokalizacją – zapraszam do kontaktu i na prezentację.
Ogólne informacje
| Rodzaj | Na sprzedaż |
|---|---|
| Powierzchnia użytkowa | 40.50 m² |
| Piętro | 1 |
| Liczba pokoi | 2 |




