Lubieszów - lokale mieszkalne na nowopowstającym osiedlu
Nowa Sól, Lubuskie
Opis
Szanowni Państwo,
zapraszamy do zapoznania się z naszą nową ofertą nieruchomości – lokale mieszkalne w budynkach dwulokalowych w m. Lubieszów, Gm. Nowa Sól - dostępnych jeszcze 5 lokali z 8.
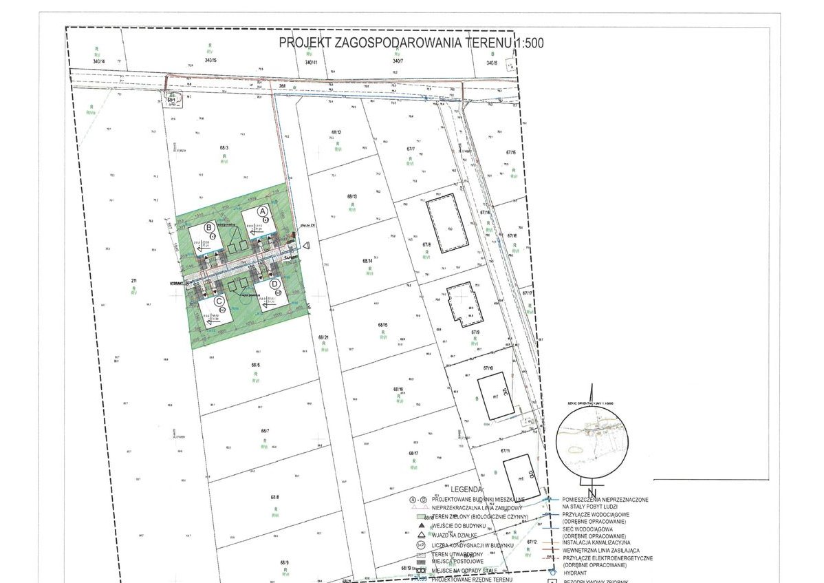
Nasze osiedle w Lubieszowie to przyszłościowo zespół budynków zaprojektowany z myślą o osobach poszukujących bliskości z naturą, terenów do uprawiania sportów, a jednocześnie potrzebujących szybkiego dostępu do pełnej infrastruktury wiejsko-miejskiej.
W ramach inwestycji aktualnie powstają dwa budynki dwulokalowe (parter i piętro/poddasze) o pow. ok. 152m2 (każdy lokal ma powierzchnię 75,77m2). Docelowo takich budynków dwulokalowych w tej inwestycji będzie 8, czyli do dyspozycji Klientów oddajemy 16 lokali mieszkalnych.
Cena lokalu w stanie deweloperskim: 575 000,00zł
Cena zawiera m.in. miejsce parkingowe (przed budynkiem), chodnik do drzwi wejściowych, ogródek przydomowy, ogrzewanie podłogowe i pompę ciepła, wszystkie instalacje, itd..
Oferowane lokale składają się z następujących pomieszczeń:
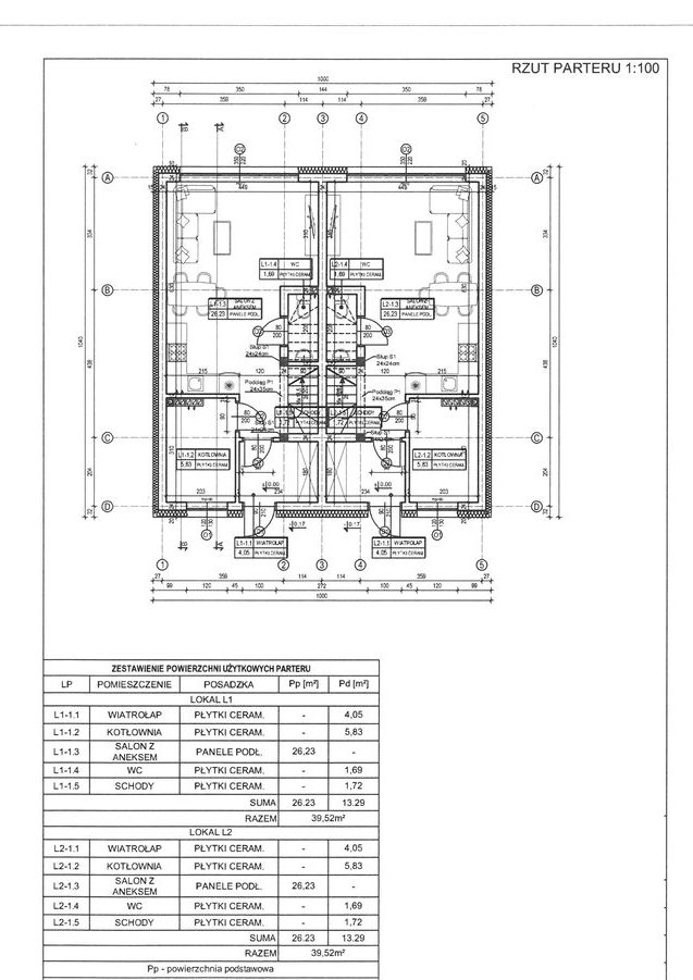
Parter o powierzchni 39,52m2, na który składają się:
Wiatrołap – 4,05m2
Kotłownia – 5,83m2
Salon z aneksem kuchennym – 26,23m2
WC – 1,69m2
Schody – 1,72m2
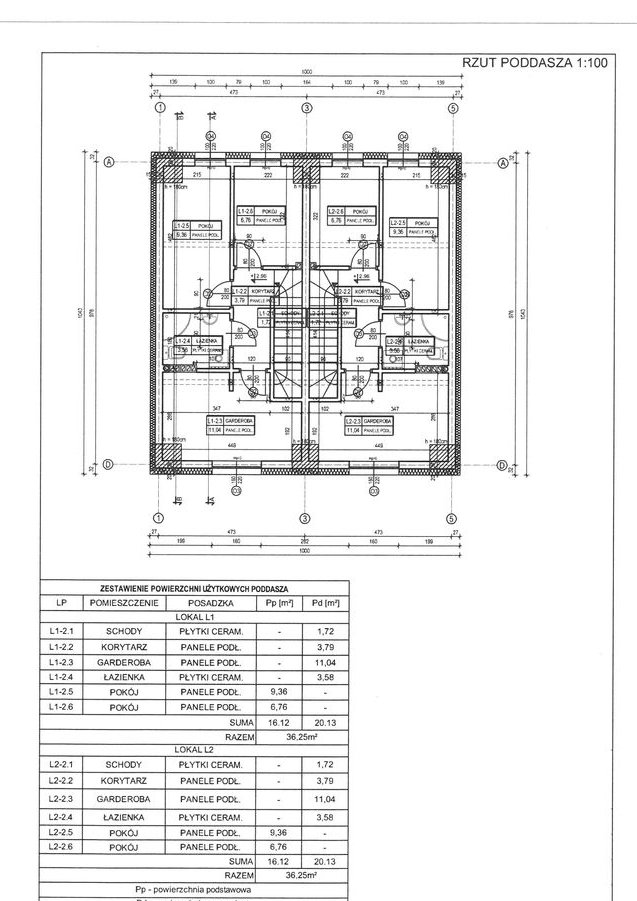
Piętro/poddasze o powierzchni 36,25m, na który składają się:
Schody – 1,72m2
Korytarz – 3,79m2
Garderoba – 11,04m2
Łazienka – 3,58m2
Pokój – 9,36m2
Pokój – 6,76m2
Układ pomieszczeń został zaprojektowany z myślą o jak najlepszym komforcie przyszłych Właścicieli. Jednocześnie, konstrukcja budynku pozwala na dowolne projektowanie przestrzeni wewnątrz lokali, co daje możliwość aranżowania ich według potrzeb przyszłych Właścicieli.
STANDARD WYKOŃCZENIA :
• Ściany konstrukcyjne zewnętrzne z SOLBET 24 cm, ocieplenie ścian styropianem o grubości 20cm
• Ścianki wewnętrzne wybudowane z SOLBET 12 cm zgodnie z projektem
• Konstrukcja dachu – więźba dachowa kryta blachą na rąbek
• Stolarka okienna PCV profil sześciokomorowy z pakietem trzyszybowym, kolor antracytowy z zewnątrz i biały od wewnątrz- mające wysokie parametry izolacji cieplnej. W oknach są rolety elektryczne
• Drzwi wejściowe marki Hormann w kolorze antracytowym
• Na elewacji położony tynk jednokolorowy, a wykusz od frontu wykończony blachą (tą, którą pokryty będzie dach)
• Tynki wewnętrzne nakładane mechanicznie, niemalowane
• Rozprowadzenie instalacji elektrycznej (zgodnie z projektem) – uwaga! Nie montujemy osprzętu elektrycznego, Klient dostaje cały osprzęt do samodzielnego montażu w dogodnym dla siebie momencie
• W pomieszczeniach wylana końcowa posadzka betonowa wykonywana mechanicznie z ociepleniem styropianem do dowolnego wykończenia przez Nabywcę
• Rozprowadzenie instalacji wodnokanalizacyjnej wg projektu
• Instalacja grzewcza - ogrzewanie podłogowe
• Pompa ciepła o mocy 5kW wraz z podłączeniem i uruchomieniem przez serwisanta
Każdy lokal posiada ogródek przydomowy o powierzchni zgodnej ze szkicem zagospodarowania terenu , który zostanie ogrodzony płotem panelowym w kolorze antracyt – brak ogrodzenia od frontu domu.
Do każdego lokalu przypisane jest 1 miejsce parkingowe zlokalizowane przy budynku.
Planowany termin zakończenia tego etapu inwestycji (dwa budynki dwulokalowe) to kwiecień-maj 2026r.
W przypadku zainteresowania, zapraszamy do kontaktu telefonicznego
Przedstawiona oferta cenowa ma charakter informacyjny, nie stanowi oferty handlowej w rozumieniu Art.66 par.1 Kodeksu Cywilnego. Treść ma charakter informacyjny i zalecamy jej osobistą weryfikację. Przedstawione wizualizacje budynków są przykładowe i mogą się różnić od stanu ostatecznego wykonania.
Kontaktując się z Firmą wyrażą Państwo zgodę na przetwarzanie danych osobowych zgodnie z przepisami ustawy z dnia 29 sierpnia 1997 roku o ochronie danych osobowych / Dz.U.Nr. 133 poz. 883/. Klientowi przysługuje prawo do wglądu do swoich danych osobowych i ich aktualizacji.
Ogólne informacje
| Rodzaj | Na sprzedaż |
|---|---|
| Powierzchnia użytkowa | 75.77 m² |
| Liczba pokoi | 3 |




